Zapraszam do zapoznania się z ofertą sprzedaży przytulnego, wolnostojącego domu jednorodzinnego, położonego w jednej z najbardziej poszukiwanych części Chorzowa – Chorzowie Batorym, przy ulicy Kasztanowej.
Nieruchomość idealna dla osób ceniących kameralną zabudowę, zieleń oraz świetną komunikację z całym Śląskiem.
DZIAŁKA
Dom posadowiony jest na działce o powierzchni 491 m², o regularnym, prostokątnym kształcie.
działka w całości ogrodzona
od frontu nowoczesne ogrodzenie oraz brama wjazdowa Wiśniowski z wideofonem (2020 r.)
podjazd i nawierzchnia frontowa wyłożone kostką granitową
wyjście z domu na taras i ogród od strony tylnej
Ogród został starannie zaprojektowany, stanowiąc idealne miejsce do wypoczynku i relaksu. Bogata i różnorodna roślinność nadaje nieruchomości wyjątkowego charakteru.
W ogrodzie znajdują się m.in.:
drzewa: orzech, jabłoń, brzoza ozdobna, klon, jodła koreańska
śliwy ozdobne Pisardii, kosodrzewina
przy tarasie: aktinidia ostrolistna
wzdłuż ogrodzenia: funkie, laurowiśnie, berberysy, ligustr chiński
przy elewacji: perukowiec, ognik krenowany
liczne nasadzenia ozdobne: róże, hortensje bukietowe, rododendrony, ostrokrzew Meserve
Dodatkowo zadbany trawnik oraz przestronny taras po remoncie w 2019 roku, idealny do aranżacji strefy wypoczynkowej.
Dom został wybudowany w latach 50-tych, a na przestrzeni lat był sukcesywnie przebudowywany i modernizowany.
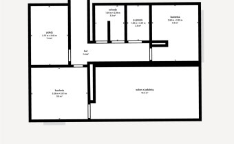
powierzchnia użytkowa: 103 m²
budynek podpiwniczony
parter + piętro ze skosami i oknami dachowymi
ocieplenie: 15 cm styropianu
elewacja z tynkiem silikatowym (2018 r.)
nowe odwodnienie dachu (część mieszkalna i garaż)
dach spadzisty, blachodachówka Ruukki
izolacja dachu: 15 cm wełny
przestronna kuchnia z nowoczesną zabudową
salon połączony z jadalnią z wyjściem na taras
samodzielny pokój (obecnie sypialnia)
garderoba
duża łazienka z wanną i kabiną prysznicową
dwa pokoje
łazienka z WC
(dostępne drewniane schody)
pralnia i suszarnia z zabudowanymi szafami
pomieszczenie z piecem CO + przestrzeń magazynowa
dodatkowe pomieszczenie idealne na biuro lub siłownię
generalny remont piwnicy w 2019 roku (wymiana posadzek)
wolnostojący garaż – 18 m² (brama uchylna)
pomieszczenie gospodarcze – 11 m² (z boku garażu)
prąd + siła (gniazdo 380 V w garażu)
kanalizacja miejska – nowe przyłącze (2023 r.)
gaz – ogrzewanie gazowe, nowoczesny piec dwufunkcyjny
zabudowa jednorodzinna
bardzo dobra komunikacja miejska
szybki dojazd do A4 (Kraków / Wrocław) oraz DTS
w pobliżu: sklepy, targowisko, szkoły, przedszkola, przychodnie
liczne tereny zielone w najbliższej okolicy
Na filmie promocyjnym przedstawiono odległości do kluczowych punktów.
dom gotowy do zamieszkania, wymaga jedynie odświeżenia wnętrz
planowany termin wydania: II kwartał 2026 r.
oferta zawiera: zdjęcia, rzuty, spacer wirtualny oraz film
Oferta na wyłączność.
Wynagrodzenie biura nieruchomości pokrywa strona sprzedająca.
Zapraszam do kontaktu oraz na prezentację nieruchomości!



